Palazzina Biazzi
____________________
COMMITTENTE | Comune di Castelvetro (PC)
PROGETTISTI| progetto architettonico: arch. Luca Oddi, arch. Filippo Bocchialini. progetto strutturale: ing. Roberto Curzio. progetto meccanico: iper.ind Dante Coruzzi. sicurezza in fase di progettazione: arch. Massimo Cappa
SITO | Via Roma, Castelvetro Piacentino
DIMENSIONE | lotto: 350 mq, due piani abitabili: 300 mq
CRONOLOGIA | 2016 progettazione definitiva ed esecutiva, cantiere in corso
IMPRESE ESECUTRICI | Costruzioni Barbieri – Baiocchi tecnologie


Palazzina BIAZZI Castelvetro (PC)
Oggetto dell’intervento è la palazzina Est del complesso assistenziale Biazzi, precedentemente adibita a sede amministrativa dell’Ente. Persa la sua originaria funzione, è stata successivamente adibita ad ufficio ed abitazione, destinazioni riscontrabili negli interventi eseguiti in tempi relativamente recenti, finalizzati all’adeguamento tecnologico-impiantistico.
L’immobile, attualmente completamente in disuso, nonostante alcuni puntuali ed incoerenti interventi di manutenzioni ordinaria e straordinaria subiti nel corso della seconda metà del secolo scorso, conseguenti anche a limitate modifiche distributive, presenta ancora oggi, seppur fatiscente, pregevoli caratteri costruttivi e compositivi. Nell’obbiettivo dell’Amministrazione c’è la ristrutturazione dell’edificio da adibire ad alloggi per persone anziane, sottolineando l’importanza di poter disporre di un ambiente domestico confortevole, accessibile e sicuro, in prossimità di strutture per la cura e l’assistenza, all’interno di un contesto abitativo a misura anche dell’anziano.

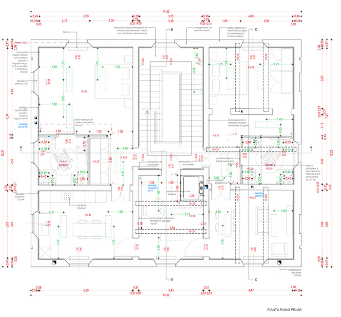
Il progetto architettonico prevede la realizzazione di quattro unità immobiliari. Due al piano terra, del tutto indipendenti e servite da uno spazio esterno di pertinenza esclusiva. Due al piano primo organizzate secondo il concetto del co-housing. Le due unità condividono infatti gli spazio di soggiorno e cucina, mantenendo invece strettamente pertinenziali le camere da letto e i servizi igienici.
La palazzina Biazzi è oggetto di un intervento di restauro che permetterà di ripristinare gli elementi tipologici originali, seppur prevedendo un totale aggiornamento impiantistico e un notevole miglioramento delle prestazioni energetiche grazie alla realizzazione di un sistema a cappotto interno a membrana riflettente.
Le facciate sono oggetto di un delicato intervento di restauro conservativo mirato a consolidare le modanature e gli elementi di pregio, e ad integrare le lacune con materiali e tecniche naturali, congruenti con quelli esistenti.




